310 Rue Sharron
Otterburn Park, Montérégie J3H5N9
Maison à étages | MLS: 20873506
1 099 000 $











































Description
Propriété de conception unique sur un terrain boisé de plus de 38 000 pi², située dans un secteur recherché d'Otterburn Park. À distance de marche des services essentiels, marchés, transports et parcs municipaux.Cette maison solaire offre une luminosité exceptionnelle, une vaste aire de vie avec cuisine ouverte, salle familiale avec foyer, véranda 3 saisons, bureau fermé, 3 chambres à l'étage, suite des maîtres avec walk-in et balcon, garage double, pièce polyvalente, piscine creusée et magnifique boisé. Un havre de paix rare sur le marché.
Découvrez le 310 rue Sharron à Otterburn Park : une
propriété à l'architecture audacieuse, nichée dans un
paysage boisé d'exception, au coeur d'un des secteurs les
plus prisés. Conçue pour dialoguer élégamment avec la
nature, elle repose sur un vaste terrain de plus de 38 000
pi².
Dès l'arrivée, une longue allée privée bordée d'arbres
matures vous conduit à une façade verdoyante, promesse d'un
havre de paix empreint de sérénité. L'intérieur, baigné de
lumière grâce à une fenestration abondante, dévoile des
espaces de vie chaleureux et fonctionnels.
Au rez-de-chaussée, le grand hall d'entrée mène à un bureau
fermé propice au télétravail, à une cuisine généreuse dotée
d'un îlot central et de rangements optimisés, ainsi qu'à
une salle à manger conviviale avec vue sur la cour arrière.
La véranda trois saisons, avec son plafond de bois et ses
larges fenêtres moustiquaires, prolonge naturellement la
maison, idéale pour partager des moments familiaux en tout
confort. Une salle familiale avec foyer au bois, une salle
d'eau et un accès direct à la terrasse complètent ce niveau.
À l'étage, trois chambres raffinées, dont une suite des
maîtres exceptionnelle avec coin lecture, walk-in et balcon
privé, invitent à la détente. Une salle de bains spacieuse
et une salle de lavage indépendante ajoutent praticité et
sophistication.
La pièce polyvalente au-dessus du garage -- idéale en
studio, bureau professionnel, atelier d'art ou salle de
yoga -- ainsi que le deuxième salon avec plafond
cathédrale, accentuent l'impression d'espace et de
distinction.
Le vaste sous-sol, bien que non aménagé, offre un fort
potentiel de rangement. Le garage double (22,5 × 30,1 pi)
peut accueillir deux véhicules, servir d'atelier ou
d'espace de stockage spécialisé.
À l'extérieur, le jardin paysager soigneusement aménagé
dévoile une piscine creusée, des terrasses élégantes, des
jardins luxuriants et un espace détente enveloppé d'un
écran naturel, garantissant une intimité absolue.
Un secteur d'exception, à distance de marche voire 5
minutes de la propriété se trouve des écoles primaires et
secondaires, garderies/CPE, parcs, pistes cyclables,
transport en commun et accès rapides à l'autoroute,ainsi
qu'une boulangerie, une fruiterie et des épiceries,
facilitant le quotidien tout en profitant d'un cadre de vie
paisible. Le Parc Sharron situé dans la même rue, à deux
pas de la propriété, offre des modules de jeux, un terrain
de pétanque et même des installations d'exercices gratuites
pour tous. Les familles et amateurs de plein air
profiteront surtout de la proximité immédiate du Mont
Saint-Hilaire, réputé pour ses sentiers de randonnée, son
centre de la nature et ses paysages enchanteurs en toute
saison.
Rare sur le marché, cette maison conjugue tranquillité,
design, fonctionnalité et raffinement. C'est un véritable
sanctuaire pour les amateurs de nature exigeants,
souhaitant évoluer dans un cadre d'exception... à deux pas
de l'animation et des services essentiels.
Inclus : Luminaires, rideaux, pôles, stores, réfrigérateur du sous-sol, électroménagers de la cuisine, 2 ouvres-portes de garage et ses accessoires, piscine creusée et accessoires, étagères industrielles du garage, aspirateur central et ses accessoires.
Location
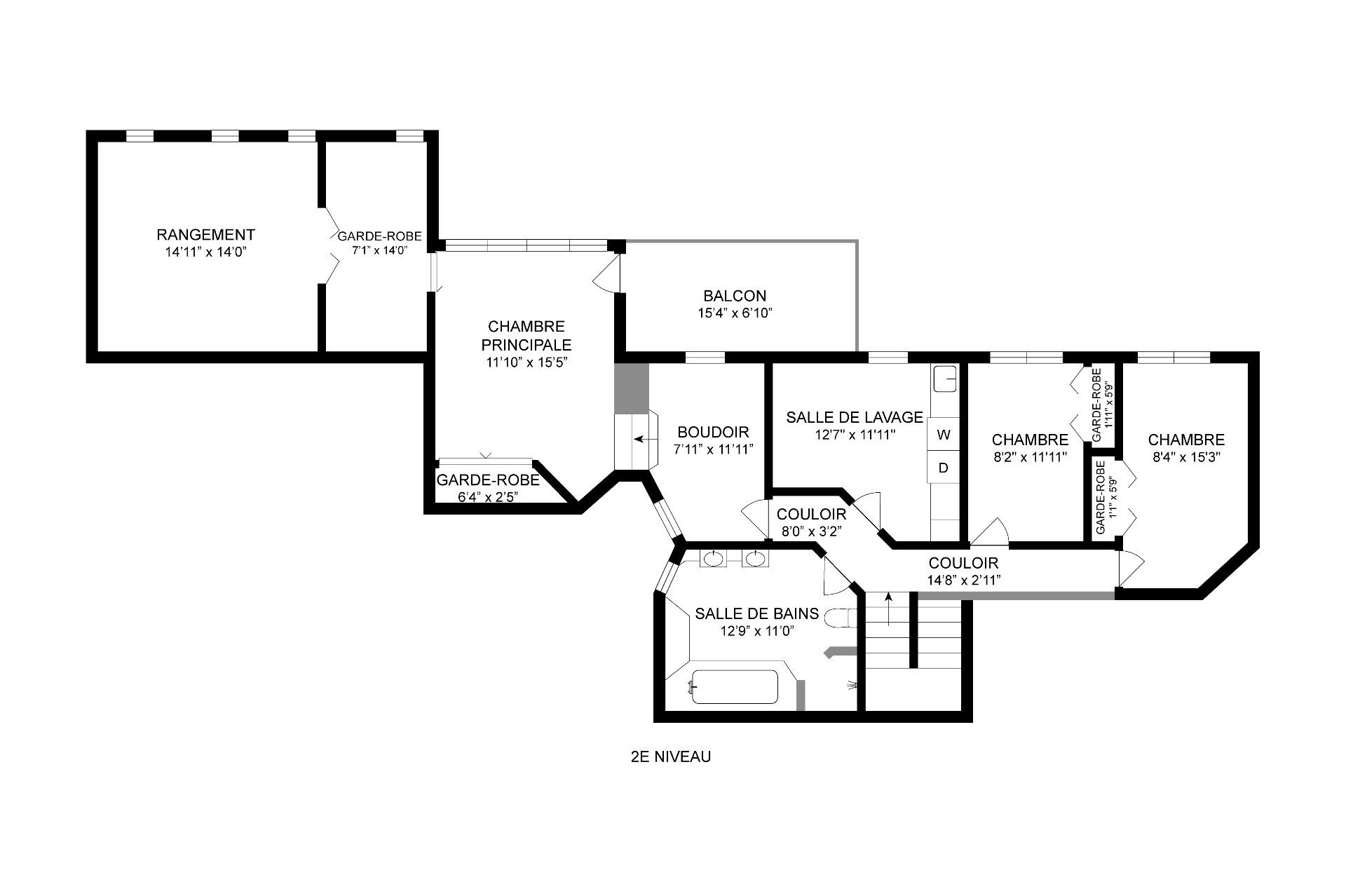
Détails des pièces
Chambre | Dimensions | Niveau | Revêtement |
---|---|---|---|
Hall d'entrée | 10.6 x 5.11 P | Rez-de-chaussée | Céramique |
Bureau à domicile | 11.8 x 9.0 P | Rez-de-chaussée | Bois |
Salle à manger | 14.10 x 17.5 P | Rez-de-chaussée | Céramique |
Cuisine | 12.11 x 14.9 P | Rez-de-chaussée | Céramique |
Salle d'eau | 4.3 x 6.11 P | Rez-de-chaussée | Céramique |
Salon | 18.6 x 15.3 P | Rez-de-chaussée | Céramique |
Salon | 14.9 x 12.2 P | 2ième étage | Bois |
Chambre à coucher | 8.4 x 15.3 P | 2ième étage | Parqueterie |
Chambre à coucher | 8.2 x 11.11 P | 2ième étage | Bois |
Salle de lavage | 12.7 x 11.11 P | 2ième étage | Tuiles |
Salle de bains | 12.9 x 11.0 P | 2ième étage | Autre |
Boudoir | 7.11 x 11.11 P | 2ième étage | Tapis |
Chambre à coucher principale | 11.10 x 15.5 P | 2ième étage | Tapis |
Penderie (Walk-in) | 7.1 x 14.0 P | 2ième étage | Tapis |
Atelier | 14.11 x 14.0 P | 2ième étage | Tapis |
Rangement | 21.4 x 11.8 P | Sous-sol | Béton |
Rangement | 19.6 x 13.3 P | AU | Béton |
Caractéristiques
Mode de chauffage | Air soufflé, Plinthes à convection |
---|---|
Garage | Attaché, Double largeur ou plus |
Stationnement | Au garage, Extérieur |
Proximité | Autoroute/Voie rapide, École primaire, École secondaire, Garderie/CPE, Parc-espace vert, Piste cyclable, Transport en commun |
Toiture | Bardeaux d'asphalte |
Fondation | Béton coulé |
Revêtements | Bois |
Aménagement du terrain | Clôturé, Patio, Paysager |
Piscine | Creusée |
Salle de bains/salle d'eau | Douche indépendante |
Énergie pour le chauffage | Électricité |
Foyers-poêles | Foyer au bois |
Équipement disponible | Installation aspirateur central, Porte de garage électrique |
Type de fenêtre | Manivelle |
Système d'égouts | Municipal |
Approvisionnement en eau | Municipalité |
Allée | Non pavée |
Topographie | Plat |
Zonage | Résidentiel |
Particularités | Terrain boisé : feuillus |
Cette inscription est présentée en collaboration avec EXP AGENCE IMMOBILIÈRE